Serie E300.3 - Kette, im Außenradius zu befüllen
1. Torsionsbewegungen möglich
2. Große Bolzen - lange Lebensdauer
3. Leitungsschonender Innenraum
4. Anschlusselement mit integrierter
Zugentlastung möglich
5. Version E, im Außenradius zu befüllen
6. Version Z, im Innenradius zu befüllen
7. Schmutzabweisende Außenkontur
8. Sehr leicht zu befüllen
9. Innenaufteilung möglich
10. Mit 1-, 2- oder 3-Kammersystem lieferbar (fest eingespritztes Mehrkammersystem für getrennte
Leitungsverlegung))
Serie E300 )
Serie E300.2
11. "Druckknopfprinzip" hält Glieder zusammen
Lieferb. Innenbreiten:3x46 mm
Lieferbare Biegeradien R: 75 bis 300 mm
Teilung: 67 mm je Glied = 15 Glieder/m
Am Öffnungsprinzip überlappende Öffnungsstege
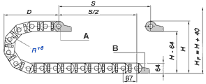
A=Mitnehmer, B=Festpunkt
Teilung: 67 mm
Glieder pro m: 15
Verfahrweg: S
Kettenlänge = S/2 + K
K = Zugschlag für Biegeradius bei der e-ketten Längenberechnung in mm
Hinweis: Kettenlänge für die Kettenglieder wird aufgerundet, da es keine halben Glieder gibt.